杭州 华夏之心|采暖系统
人气
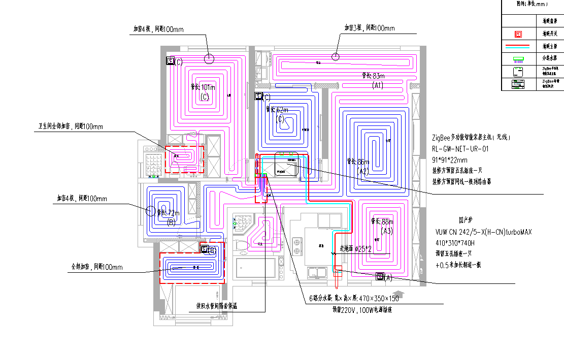
图片
该小区已签约1500户
城市:杭州
楼盘:华夏之心
面积:平层㎡
类型:
精装修 样板房 小工装系统:
30天内已有【173】人预约

免费获取报价方案
中央空调
地暖
暖气片
地暖空调一体机
新风
净水
给排水
智能家居
别墅电梯
四恒
全空气
AI科技家电
抱歉,您输入的内容有误,请重新输入!
恭喜您,提交成功!我们会尽快与您联系!
预约参观工地
立即申请
2021-08-03
2099阅读
该小区已签约1500户
类型:
系统:
中央空调
地暖
暖气片
地暖空调一体机
新风
净水
给排水
智能家居
别墅电梯
四恒
全空气
AI科技家电

抱歉,您输入的内容有误,请重新输入!
恭喜您,提交成功!我们会尽快与您联系!
预约参观工地
立即申请
/